株洲当代高科上品
关注
5300元/㎡
备注:均价仅供参考!
报价时间:2026-04-17,价格有效期:28天 该价格为参考价格,实际价格以开发商为准!
楼盘地址 : 株洲市天元区隆兴路与佳兆业路交汇处
开盘时间 : 2020年12月21日
交房时间 : 2022年10月22日3#5#6#7#交付
主力户型 :
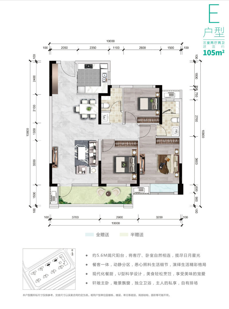
3室2厅(105.00㎡)
|3室2厅(103.00㎡)
|3室2厅(93.00㎡)
|4室2厅(133.00㎡)
|4室2厅(131.00㎡)
开 发 商 : 湖南当代高科置业有限公司

