您的位置: 首页 > 新房 > 株洲镜湖蓝岸

株洲镜湖蓝岸

在售 宜居生态

株洲镜湖蓝岸

5300元/㎡ 备注:均价仅供参考!

报价时间:2026-04-17,价格有效期:28天 该价格为参考价格,实际价格以开发商为准!

楼盘地址 : 云龙示范区玉龙路189号
开盘时间 :
交房时间 :
主力户型 : 2室2厅(77.31㎡) |4室2厅(160.53㎡) |5室3厅(191.64㎡) |5室3厅(192.13㎡)
开 发 商 : 湖南建宁房地产开发有限公司
想了解价格优惠?致电售楼详询!(号码隐藏)

400-6123-5722936

楼盘详情

占地面积: 103亩 建筑面积: 13万㎡ 开发商: 湖南建宁房地产开发有限公司
计划户数: 1108户 开盘时间: 交房时间:
产权年限: 住宅70年,商业40年 建筑类型: 住宅 车位情况: 暂无资料
物业类型: 暂无资料 物业公司: 暂无资料 项目地址: 云龙示范区玉龙路189号
物业费用: 2.0元/㎡/月 售楼地址: 云龙示范区玉龙路189号

株洲镜湖蓝岸楼盘动态

更多动态
    暂无数据

楼盘问答

    暂无数据
  • 株洲镜湖蓝岸6#03/04/07/08户型

    在售

    6#03/04/07/08户型 2室2厅1卫1厨

    建筑面积77.31㎡

  • 株洲镜湖蓝岸7-16#户型

    在售

    7-16#户型 4室2厅2卫1厨

    建筑面积160.53㎡

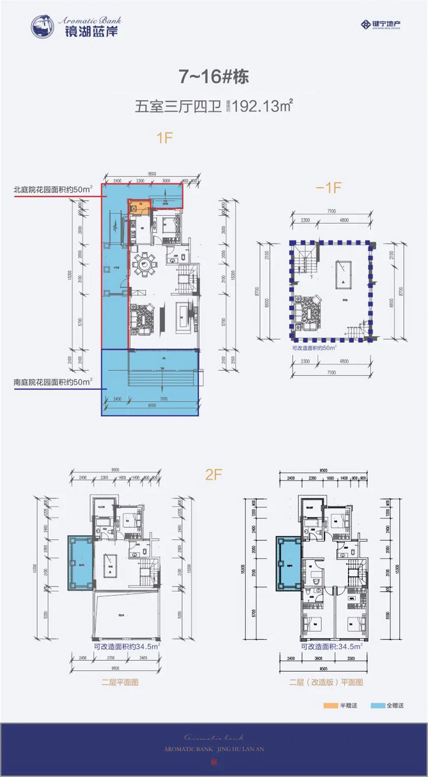
  • 株洲镜湖蓝岸7-16#五房户型

    在售

    7-16#五房户型 5室3厅4卫1厨

    建筑面积192.13㎡

  • 株洲镜湖蓝岸7-16#五房户型

    在售

    7-16#五房户型 5室3厅4卫1厨

    建筑面积191.64㎡